Esta cocina es parte del proyecto de reforma de vivienda Casa Mario (2001)
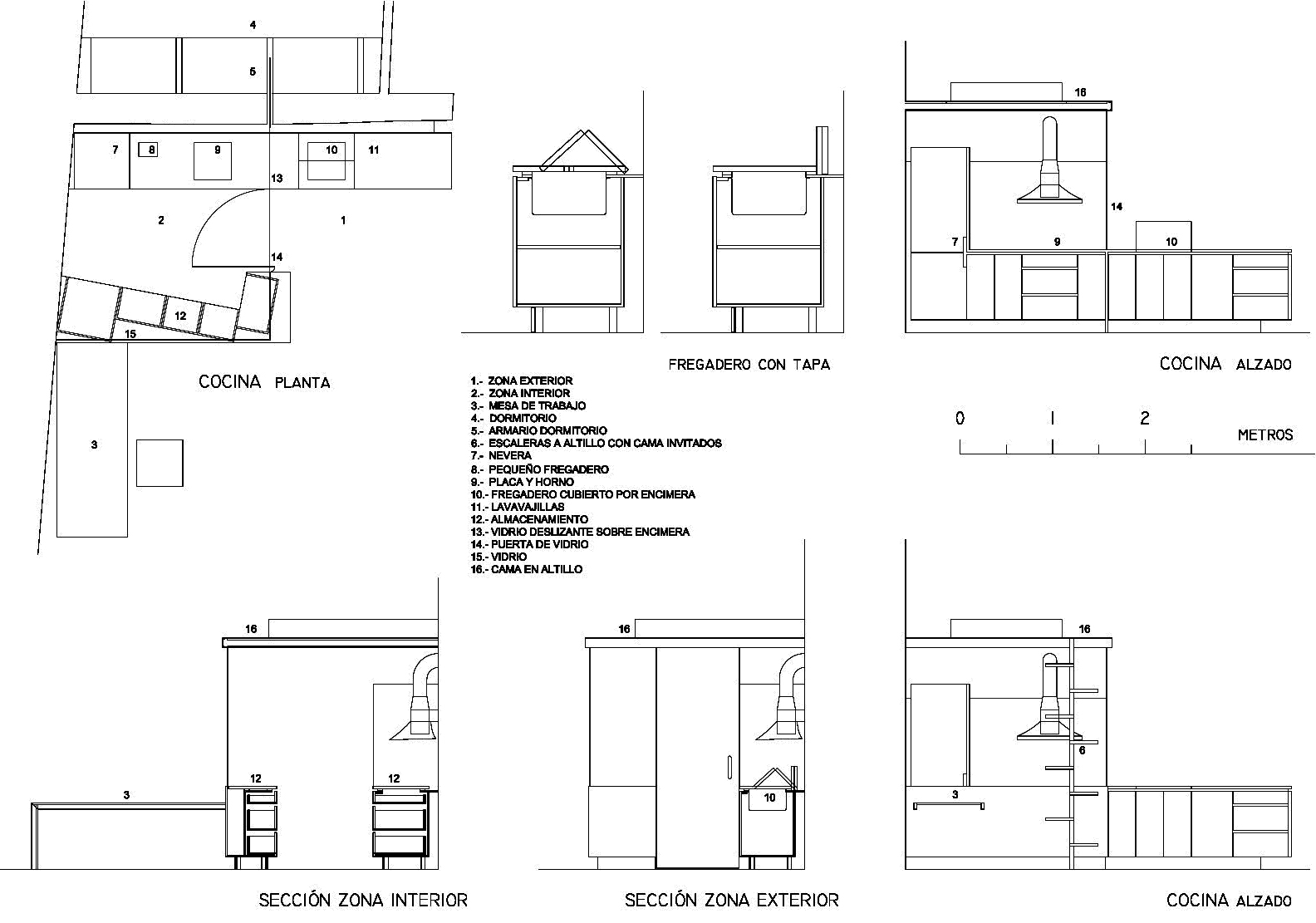
La cocina está abierta sobre el salón en su uso normal. Parte de ella se puede cerrar con vidrio mediante una puerta abatible y una corredera que desliza sobre la encimera. Para acotarla en altura se construye un altillo perfectamente estanco a los humos de la cocina. Aquí se coloca la cama de invitados, a la que se accede por medio de una escalera vertical mínima.
Con la misma madera de haya de la cocina se construyen dos grandes mesas, una para trabajar y la otra para comer.



