Rehabilitación integral
Promotor Privado
Edificio vacío
Empresa constructora:
HERSAN 2001 S.L.
Proyecto y obra abarcaban:
- Cimentaciones
- Estructuras
- Instalaciones
- Terminaciones viviendas
- Accesibilidad
- Fachadas y patios

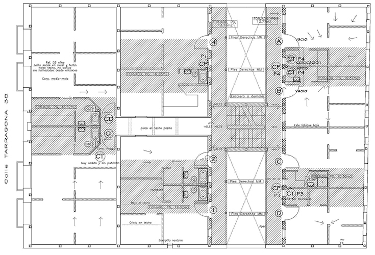
Estado original >
Toda la estructura interior del inmueble estaba en un pésimo estado


Rehabilitación >
La estructura interior se levantó de nuevo, desde las cimentaciones.
Las fachadas se conservaron.

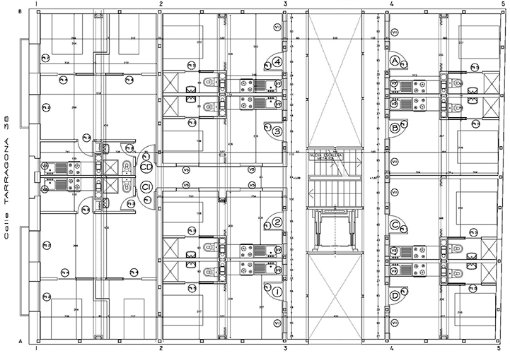
Acabados >
El inmueble comprendía 8 viviendas exteriores y 32 viviendas interiores en corrala.
Todas ellas se renovaron y entregaron nuevas.
Se construyó un ascensor acristalado en un lateral del patio de la corrala.


