Rehabilitación integral
Promotor Privado
Empresa constructora: DETECSA
Edificio con un 40% de ocupación en regimen de alquiler.
Proyecto completo de transformación del inmueble, evitando que los vecinos abandonen el edificio.
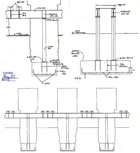
Demolición y reconstrucción de toda la edificación manteniendo la piel exterior.
Reestructuración total de las viviendas interiores en corrala, duplicando su superficie e incorporando baños y cocinas.























