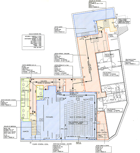
Teatro Municipal de Miraflores de la Sierra
Reforma de un local en el pueblo de Miraflores de la Sierra para convertirlo en Teatro Municipal y varias salas de ensayo de la escuela de música municipal.
Colaboradores:
Arquitecto colaborador: Susana López Chollet
Propiedad: Ayuntamiento de Miraflores de la Sierra
Empresa Constructora: Licuas
Cerrajería: Crisalferro S.L.
Fotografías: Pablo Fernández Lorenzo.





Obra >



Estado original y proyecto >





