Estado original
Vivienda del XIX frente al parque del Retiro, en Madrid
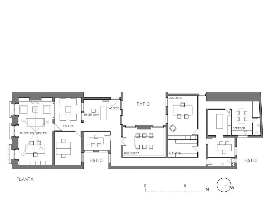
Nuevo uso
Lugar de trabajo de De Castro Morenilla, un equipo de abogados que se denomina como "estudio" y cuyo espacio de trabajo busca diferenciarse de los "despachos" al uso.
Circunstancias
Un vecino en la planta inferior al que la obra no debe molestar.
Intervención Tres operaciones:
- Introducir el parque del Retiro hasta el interior, abriendo los muros de carga de tal modo que desde la misma entrada se pueda disfrutar de la privilegiada visión del parque a la altura de las copas de los árboles.
- Mantener el suelo de madera existente, para no perturbar al vecino, pintándolo con el color corporativo del "estudio" de abogados.
- Diseñar una línea conjunta de puertas y mesas de trabajo fabricadas con pletinas macizas de acero inoxidable y tableros de formica.
Colaboradores:
Coordinación obras de arte: Eloy Martínez de la Pera_ sintítulo
Gráfica: Víctor Rodriguez_fluxop
Constructor: Ciprian Martinas_Euromuliservicios Martinas
Acero inoxidable: Dacin
Fotografías: Arles Iglesias


Publicaciones revistas:
漂亮家居 My HOME 160, 06/2014. Taiwan
Despacho principal
El despacho principal es el lugar de reunión del equipo. Los dos abogados, ambos profesores de universidad, requerían de una pizarra donde plantear las estrategias conjuntas.
La pizarra se construyó corredera, encima de la chimenea.
En el techo se extendió una lámpara ILDE de dab.


Recepción
Desde la recepción se intuye el Retiro a través de los muros intermedios abiertos.
(Silla Axess Plus de Vitra. Cuadro de Markus Linnenbrink y gráfi ca de fluxop)
Espera
La zona de espera previa al despacho principal disfruta de la visión del parque y la luz natural a través del muro acristalado intermedio. La mesa de trabajo de este despacho mantiene una cierta privacidad, aunque un estor adicional le proporciona una completa independencia.
(Butacas Wrapp de Viccarbe)



Biblioteca
Puerta de entrada doble, estanterías de obra y una gran mesa de reuniones de acero inoxidable y formica.
(Lámpara Marc de dab y sillas .05 de Maarten Van Severen)





Puertas
Puertas y mesas fabricadas con pletinas macizas de acero inoxidable y tableros de formica.
Las puertas se reciben en obra sin moldura alguna.


Lámpara
En el despacho principal desperdigamos por el techo una lámpara ILDE de dab, con su permiso.


Despacho sobre el patio
(Butacas Wrapp de Viccarbe. Sillas Aluminium de Charles y Ray Eames y lámpara de mesa Talak de Artemida)


