Consultorio local en Fuentidueña del Tajo
Consejería de Sanidad de la Comunidad de Madrid
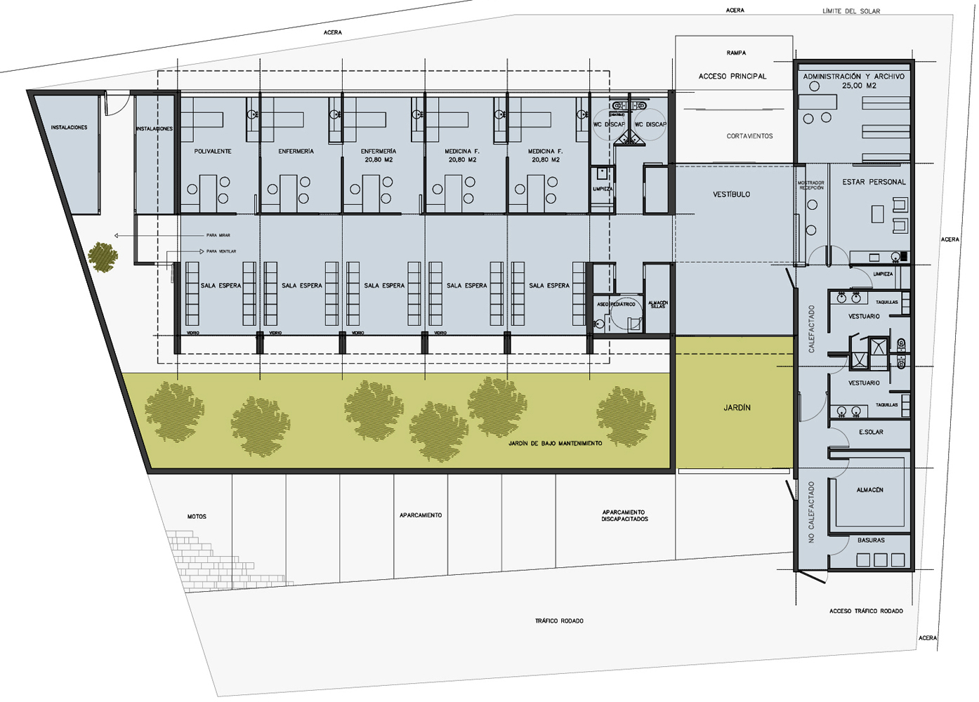
Programa de 5 consultas, esperas, administración con archivo, estar de personal y espacios anexos.
2006. Concurso. Primer premio.
2007. Proyecto de ejecución
2009. Nuevo proyecto de ejecución
Reducción del consultorio a 3 consultas
2012. Inauguración




Proyecto. 2007 >






Fin de obra. 2012 >



