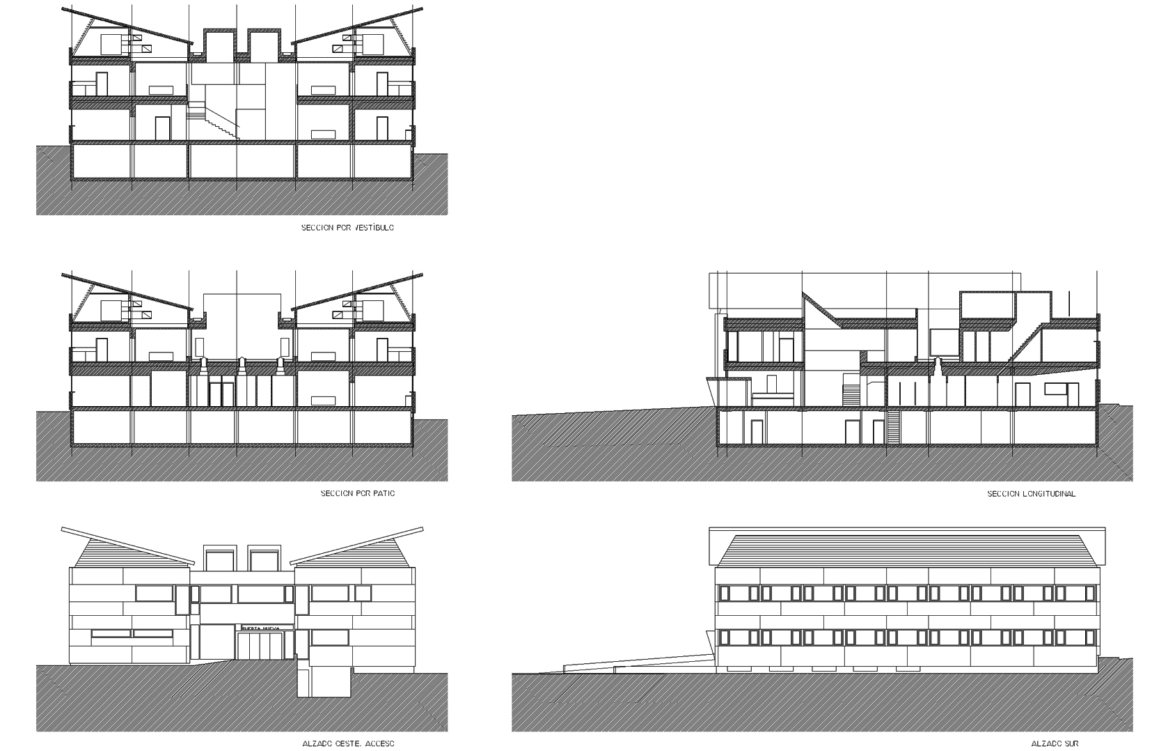
La Normativa obligaba a construir con una cubierta inclinada. El proyecto cumple con ello, solo que vertiendo hacia el interior.
La cubierta se reviste de zinc, continuo en los planos inclinados y en lamas en el resto, facilitando la ventilación de las máquinas de climatización, alojadas en su interior.
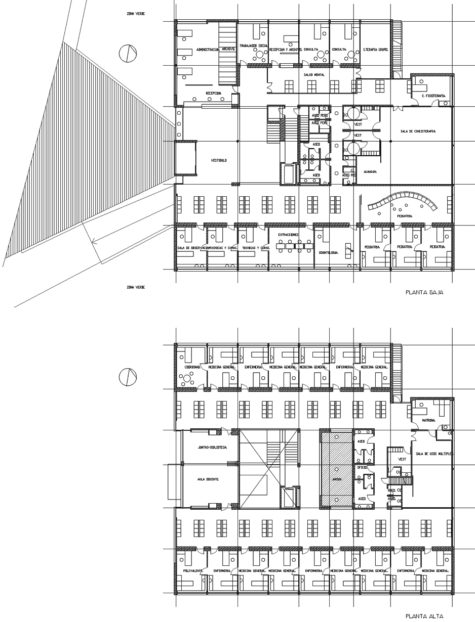
El corazón del edificio lo constituye un gran espacio central de doble altura, bajo dos grandes lucernarios. Este espacio vertebrador se expande en planta baja sobre el acceso del edificio, recibiendo iluminación horizontal a través la cristalera de acceso. En su planta alta incorpora un patio ajardinado concebido a modo de un manantial de luz y vegetación que nutre la nerviosa espera antes de entrar en consulta.
Publicaciones libros:
Arquitecture Today (Könemann)_2016.Köln, Alemania
Obra Reciente 2003-2005 (Fundación COAM)
Publicaciones revistas:
Arquitectura 339. (COAM)
Exposiciones
Exposición Obra Reciente 11-12/2004, Fundación COAM. Madrid
Arquitectos:
Ignacio de las Casas, Jaime Lorenzo, Pablo Redondo Díez, Pablo Fernández Lorenzo y Jose Manuel González Ramos
Colaboradores:
Aparejador: Juan José Bueno Crespo
Propiedad: SACYL, Junta de Castilla y León
Empresa Constructora: NECSO
Fotografías: Inés Sagastume, Pablo Fernández Lorenzo





Video:
Manuel Romero Rodriguez
Planos:





