Estado original
Vivienda familiar con área de servicio (cocina, lavadero, baño y habitación), salón-comedor y tres dormitorios.
Nuevo uso
Vivienda unipersonal para un guionista y director de cine.
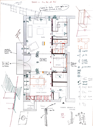
Intervención 3 operaciones:
- Alinear el espacio interior, estrechando la terraza.
- Articular la vivienda en dos bandas. La banda interior, servidora y fragmentada, comprende el acceso, el almacenamiento y la zona de dormir y trabajar. La exterior, el área servida, queda abierta de extremo a extremo y carece de uso definido, salvo la cocina,
- Romper esta división longitudinal mediante una franja de pavimento transversal que nace de la terraza y desemboca en la cama.
Casa de película
La vivienda ha formado parte de la película Flow y del videoclip Carta para ti papá de Gabbriela, ambos dirigidos por su propietario.
Colaboradores
Fotografías: David Martinez Alvarez











