Estado original
Parcela sin construir en urbanización junto a Colmenarejo. Terreno con bolos de granito
Uso
Vivienda permanente para familia con una hija.
Circunstancias
Normativa que obliga a construir con cubierta inclinada.
Proyecto
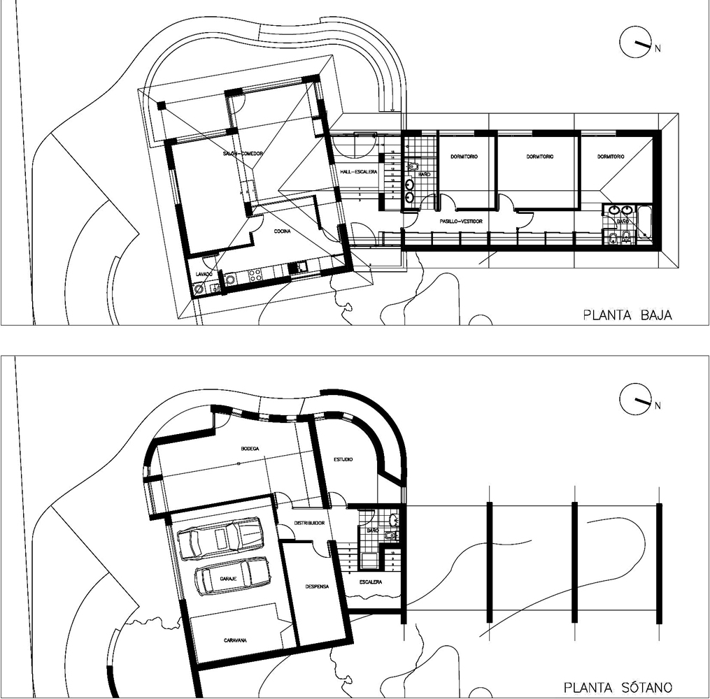
Se divide el programa de uso en dos bloques unidos por un vestíbulo de acceso que incorpora la escalera, bajo un lucernario.
El primer bloque es alargado y se construye elevado respecto al terreno. En él se sitúan los dormitorios. El segundo es un bloque cuadrado que se hinca en el terreno. En planta sótano acoge el garaje (dos coches y una caravana), un estudio, una bodega y la despensa, mientras que en planta baja aloja los espacios comunes: estar, comedor y cocina, unidos espacialmente.
En el bloque de dormitorios se recurre a un mecanismo que supone un considerable ahorro de espacio: situar los armarios en el pasillo de distribución.
La cubierta se ejecuta mediante una estructura metálica ligera de cerchas y correas.
Colaboradores
Estructura: Eduardo Díez_IDEEE











